Vendita Appartamento 3 camere a Treviso

Centro

Dati Immobile T893

Riferimento
T893
Comune
Treviso
Provincia
Treviso
Zona
Centro
Prezzo
€ 585.000
Tipologia Immobile
3 camere
Tipologia esterna
Palazzo
Operazione
Vendita
Mq
116 m2
Camere
3
Bagni
2
Terrazze
1
Parcheggi
1
Box Auto
1
Piano
2 di 5
Classe Energetica
A4

Condividi Immobile

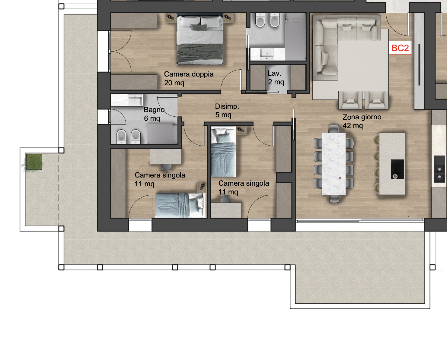
Appartamento 3 camere

Nel cuore di Treviso, tra Via Monterumici e Viale Montegrappa, nasce MONTEGRAPPA 27, un progetto residenziale che reinventa il modo di vivere in città, unendo design contemporaneo, natura e comfort quotidiano. Gli edifici ospitano le residenze Amaranth e Belle, rispettivamente di 18 e 16 unità, progettate per offrire privacy, luce naturale e spazi funzionali. Linee eleganti, volumi armonici e dettagli raffinati creano ambienti in equilibrio tra estetica e praticità. Protagoniste del progetto sono le ampie terrazze, concepite come estensioni degli ambienti interni grazie alle grandi vetrate. Spazi da vivere ogni giorno, dove il verde diventa parte integrante di uno stile di vita autentico e sostenibile. Gli interni, luminosi e ben distribuiti, offrono un perfetto equilibrio tra estetica e funzionalità. Questo appartamento è composto da un soggiorno con angolo cottura, una camera matrimoniale con bagno privato, due camere singole, un bagno di servizio e una lavanderia. Sia dal soggiorno sia dalle camere si accede direttamente alla terrazza, creando un collegamento fluido tra interno ed esterno e valorizzando la luce naturale in tutti gli ambienti.
Sono inoltre presenti un ampio box auto e un posto auto, entrambi inclusi nel prezzo di vendita. Ogni abitazione include finiture di pregio: serramenti in alluminio, riscaldamento e raffrescamento a pavimento, impianto di deumidificazione, ventilazione meccanica controllata, terrazze flottanti e palestra condominiale, il tutto in classe energetica A4.

Servizi

  • Predisposizione aria condizionata
  • Predisposizione sistema d'allarme

Contatta Agente


Immobili simili adiacenti o in zona Centro